最近有用户反映,使用CAD快速看图测量数据的时候,发现测出来的结果和图纸上的原有数据对不上,而且是差的十万八千里,这让用户非常烦恼。那么,这到底是怎么一回事呢?又要怎么解决呢?下面,我们一起往下看看。

  一、问题

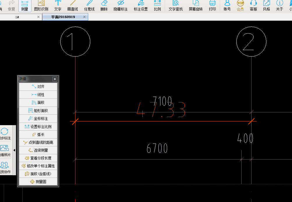
  图纸原来的是6873,测量出来的是24.37

CAD快速看图测量数据和图纸原有数据对不上怎么回事?

  二、解决方法

  以下情况需要用到比例:布局测量、大样图测量、布局转模型后测量。

  用法:打开图纸--点击工具栏“比例”按钮--选择已知线段的起点和终点--按提示输入这段线的实际长度--点确定--正常测量即可。

CAD快速看图测量数据和图纸原有数据对不上怎么回事?