AutoCAD2016快速入门:添加标注
|
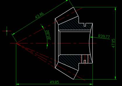
AutoCAD作为一款专业的计算机辅助设计软件,拥有非常丰富的标注类型,其中基本的标注类型为线性标注、径向标注、角度标注、同基准标注和弧长标注等,这些标注的添加方法大同小异,各有各的特色。下面,我们就一起往下看看AutoCAD2016添加标注的方法吧! 方法步骤 一、线性标注 线性标注是建筑、机械等各类图纸应用得最多的标注形式,它用于标注图形水平和竖直方向的尺寸。创建线性标注的基本方法如下: 1、选择“线性”标注功能; 2、分别指定点1、点2作为线性标注的起点和终点; 3、移动鼠标,将标注放置于适当位置,完成水平标注; 4、再次启动线性标,用与上述相同的方法指定点3、点4,如下图; 5、移动鼠标,将标注移至适当位置,完成垂直标注。 二、对齐标注 对齐标注跟线性标注类似,主要用于标注倾斜的尺寸,标注线与所标注的图形平行。基本操作如下: 1、选择“对齐”标注功能; 2、指定对齐标注的起点和终点——点5、点6,如下图; 3、将标注移至适当位置,单击鼠标,完成对齐标注的添加。 三、角度标注 顾名思义,角度标注就是用来标注角度值的。 1、选择“注释》标注”面板上的角度标注功能; 2、分别选择标注对象——线1和线2,如下图所示; 3、随着光标的移动,角度标注也在不断变化。将光标移动到适当位置并单击,完成角度标注。 四、半径标注 半径标注用于标注圆或弧的半径,直径标注类似。 1、选择“注释》标注”中的“半径”标注功能; 2、选择下图所示的圆弧; 3、移动鼠标,将半径标注放置于适当的位置,完成半径标注。 |










